- HOME
- 製品情報
- ストレーナ・オートストレーナ
- 複式ストレーナ
製品情報
複式ストレーナ
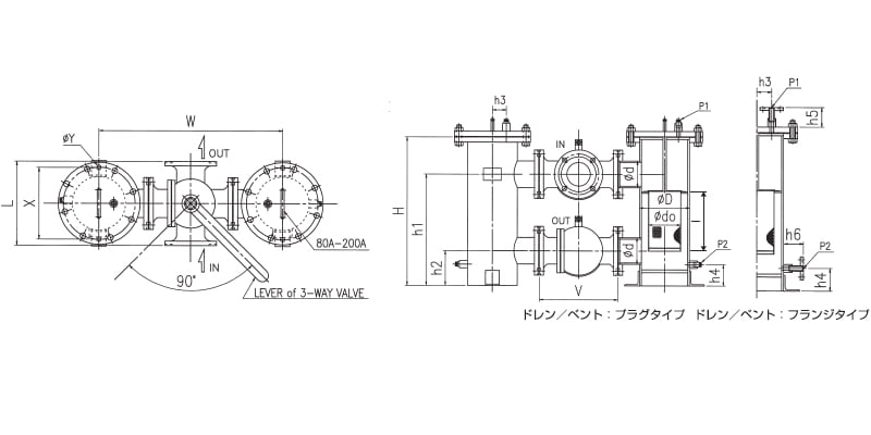
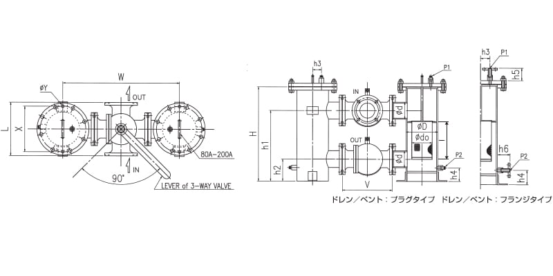
B2W 3方弁切替タイプ

バケット形を2台/1セットとしたストレーナです。切替にはコック/三方弁を使用していますので、簡単に切替ることができます。
・切替運転で通液を止めずに使用可能
・設置スペースがコンパクト
・ハイメッシュ(微細ろ過)に最適
・小径から大径まで対応可能
接続口径 | 25A~200A |
---|
※上記以外の接続口径も製作しておりますので、お問合せください。

【4弁タイプ】

ご使用条件によって、4つの弁(バタフライ弁、ボール弁)を用いるタイプもあります。
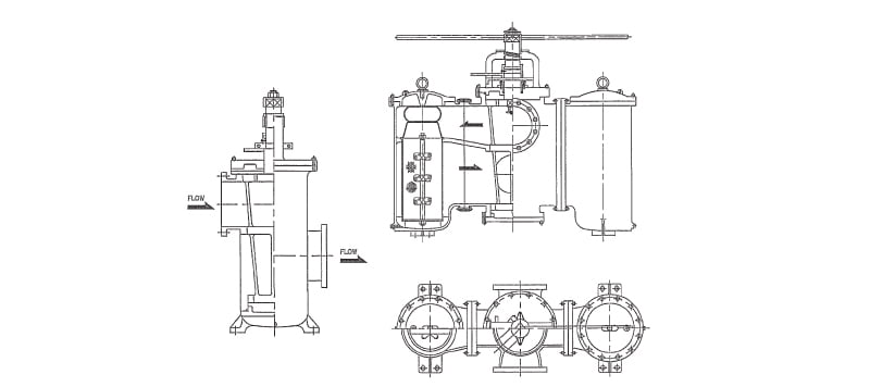
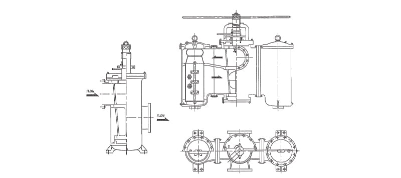
DSW(旧 KB2W) 鋳物タイプ

・鋳物製でコンパクト、小径に適合
・カバーワンタッチ式も対応
接続 | フランジ(JIS)/捻じ込み |
---|---|
本体材質 | FC200/FCD-S/SCS13/SCS14 |

材質表(B2W)
- 本体
- 炭素鋼JIS規格(SGP、STPG、STPT、STPA、他)/ステンレス鋼(SUS304,、316、316L、SUS329J4L)/チタン/ニッケル/ハステロイ/モネル
- エレメント
- ステンレス鋼(SUS304、316、316L)/チタン/ニッケル/ハステロイ/モネル
- ライニング/
コーティング - ゴム/テフロン/ポリエチレン/エポキシ樹脂/亜鉛メッキ